Photos Miraie Yokkaichi Higashihino
Yokkaichi - Higashihino 1-3-4
A recently renovated holiday home situated in Yokkaichi, Miraie Yokkaichi Higashihino features a garden. This property offers access to a balcony, free private parking and free WiFi. The property is non-smoking and is located 18 km from Suzuka Circuit.
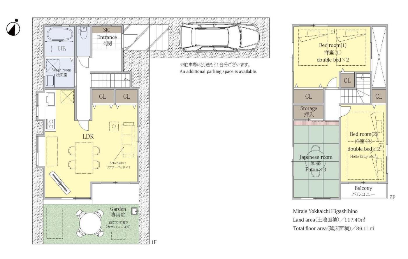
The holiday home with a terrace and garden views has 3 bedrooms, a living room, a flat-screen TV, an equipped kitchen with a microwave and a fridge, and 1 bathroom with a hot tub. The air-conditioned unit at the property features a bidet and a dressing room. For added privacy, the accommodation features a private entrance.
Nagashima Spa Land is 20 km from the holiday home, while Nippon Gaishi Hall is 40 km from the property. Nagoya Airport is 55 km away.
The hotel day starts from hour 17:00 and ends at 10:00.
This property will not accommodate hen, stag or similar parties.
Three-Bedroom House. This holiday home features a hot tub. Boasting a private entrance, this air-conditioned holiday home features 1 living room, 3 separate bedrooms and 1 bathroom with a bath and a shower. Guests can make meals in the kitchen that has a stovetop, a refrigerator, kitchenware and a microwave. The holiday home has tatami floors and features a washing machine, a dining area as well as a terrace with garden views. The unit has 5 beds and 3 futons.
Additional information about the offer Japan - Yokkaichi - Miraie Yokkaichi Higashihino, opinions of holidaymakers as well as available dates can be found on the website our partner.
License number: 四日市市指令 衛生第31-1900-0001号
Book now
Offer from our partner: Booking.com BG.17154









